ZIMIN
Menu
Home
About
• OFFICE
• SERVICES
• PARTNERSHIPS
• PUBLICATIONS
Portefolio
Select Projects
Projects
Contactos
You are here
Home
» Social Center Luz Soriano
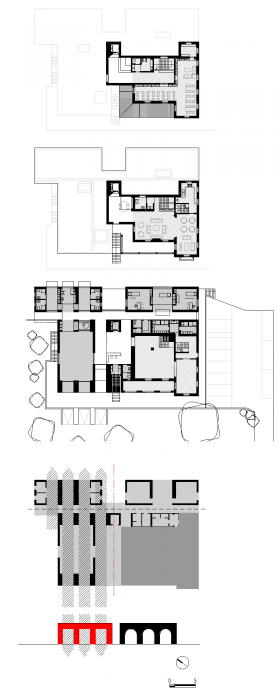
Social Center Luz Soriano
Arq Pedro Graça Lopes • Arq Miguel Meirinhos